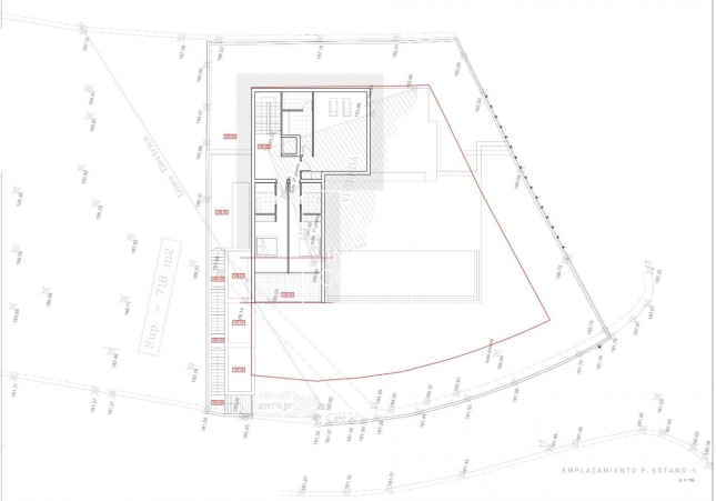
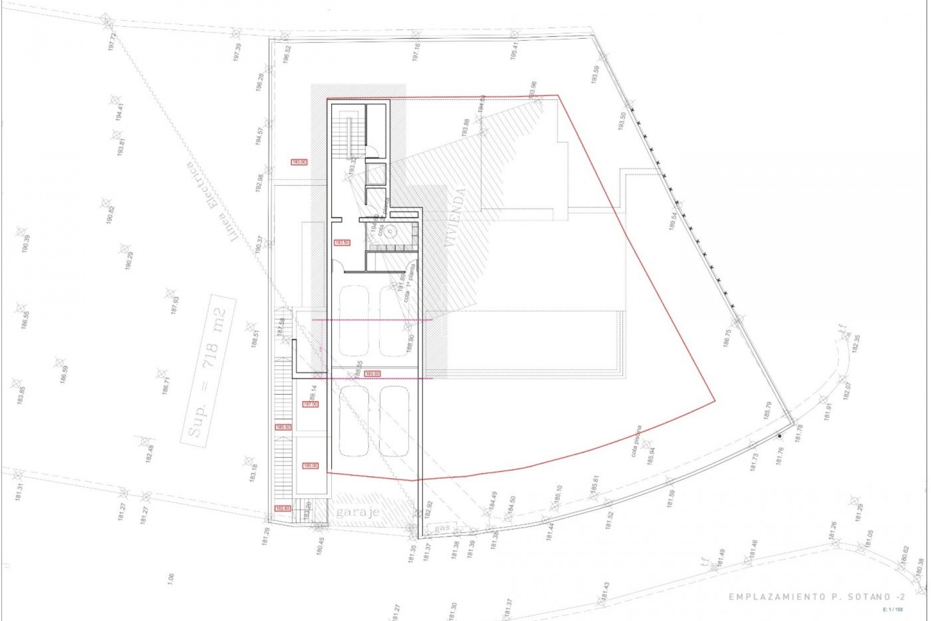
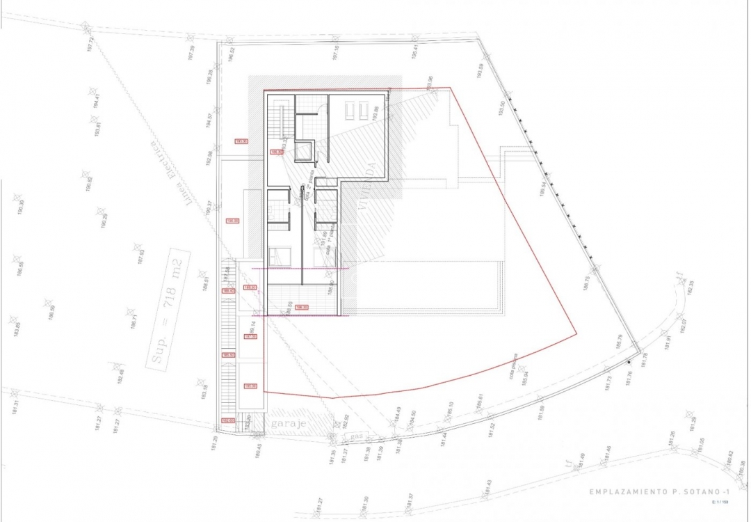
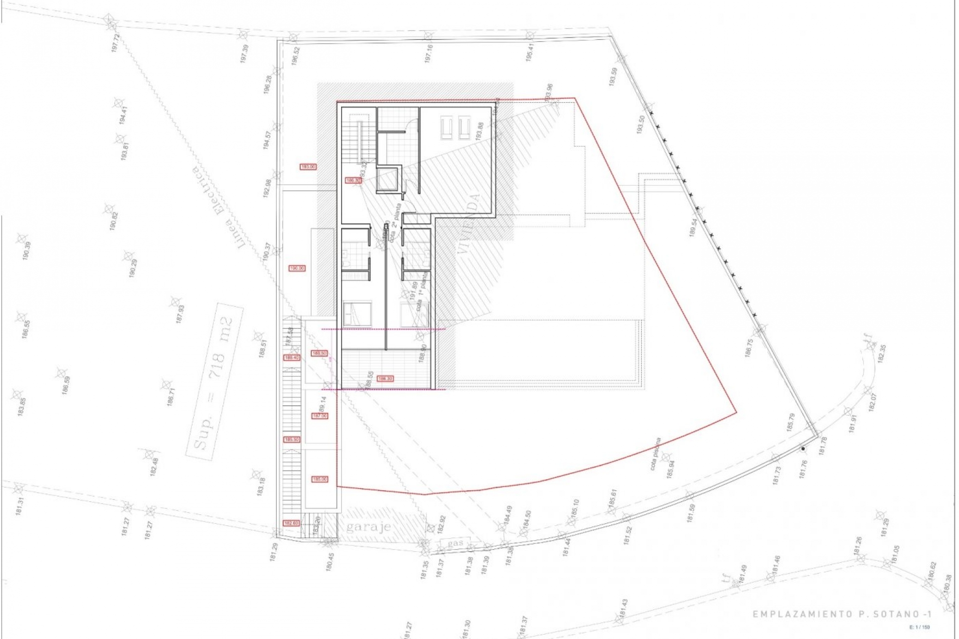
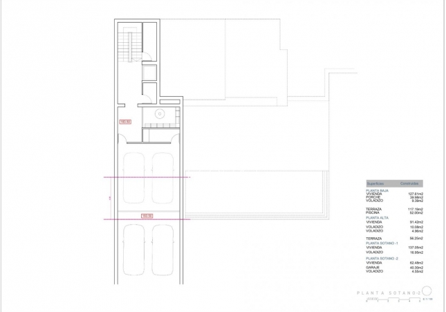
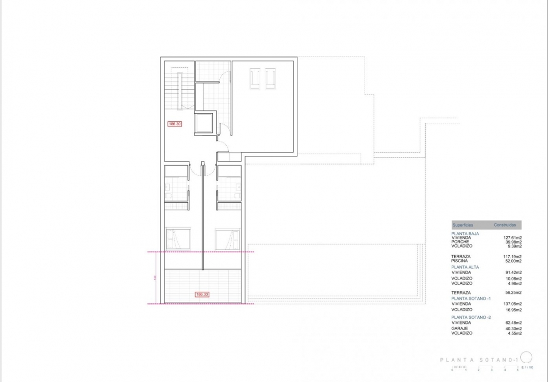
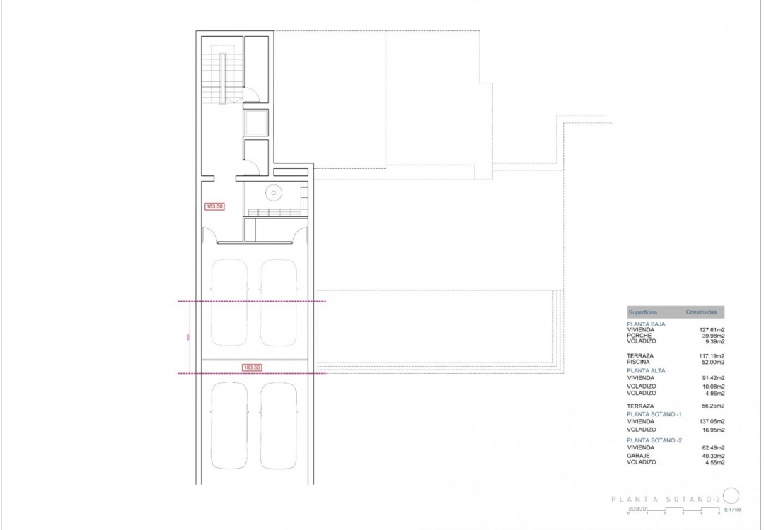
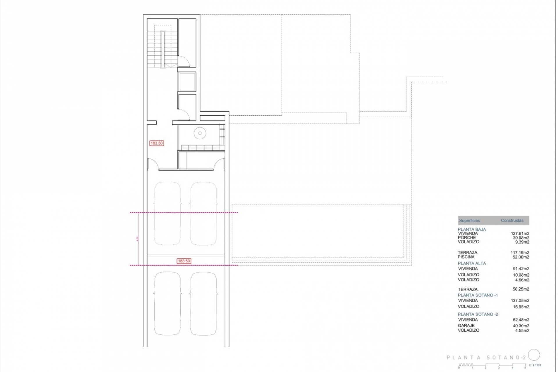
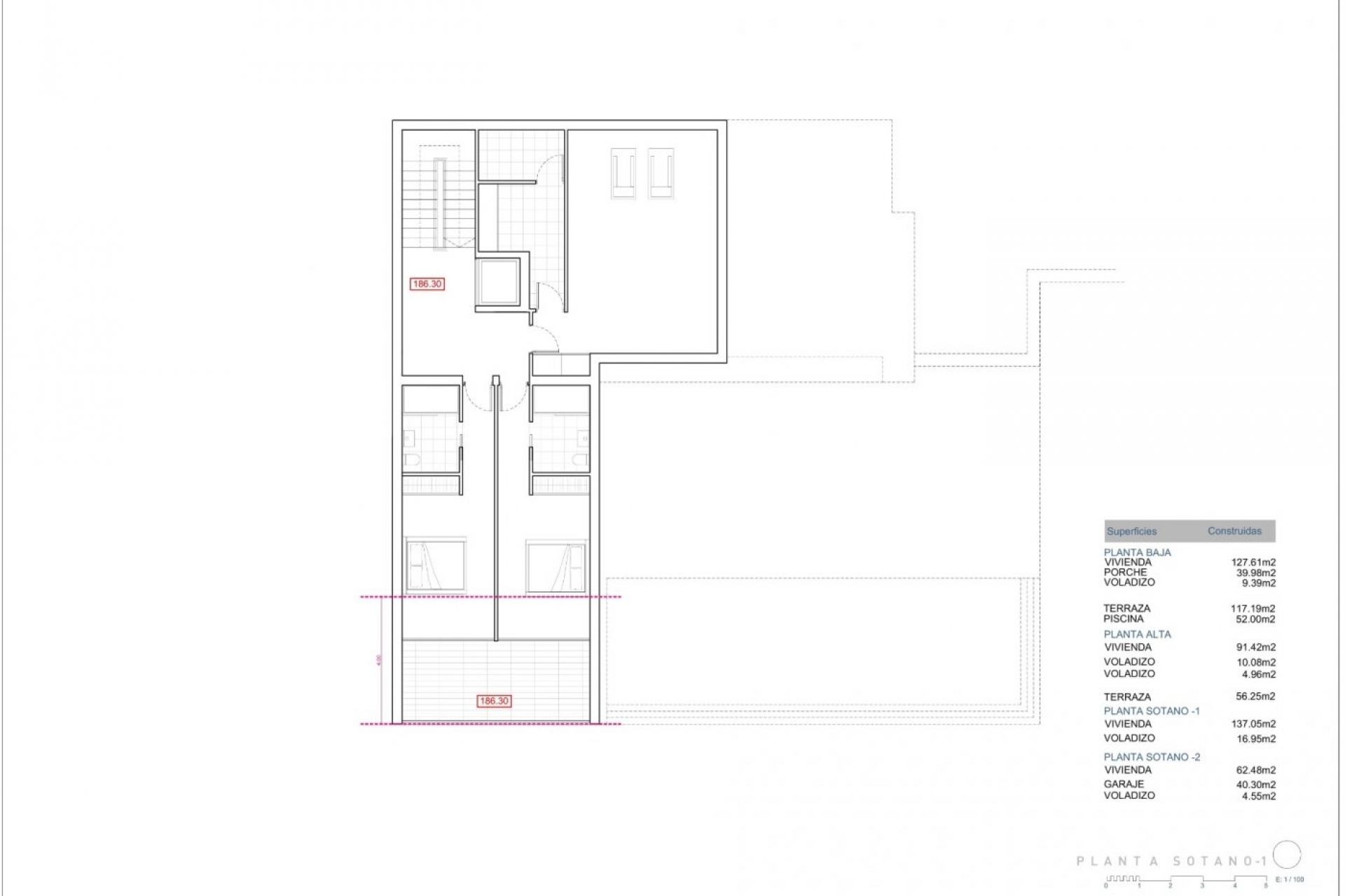
NIEUW GEBOUWDE LUXE VILLA IN BENISSA Nieuwbouw luxe villa in Benissa met ZICHT OP ZEE en de Peñón de Ifach. Deze villa, met zichtbare betonnen afwerkingen, heeft 4 verdiepingen die met een lift en een interne trap met elkaar verbonden zijn. De begane grond heeft een grote open woon-eetkamer-keuken en gastentoilet. De keuken is volledig uitgerust en heeft een kookeiland. Schuifdeuren op plafondhoogte geven direct toegang tot een ruim terras en het zwembad. De bovenverdieping heeft twee slaapkamers met en-suite badkamers en een terras. De woning heeft 2 kelders. Het souterrain nummer 1 heeft nog eens twee slaapkamers, elk met een eigen badkamer en een wasruimte. Het souterrain nummer 2 herbergt de fitnessruimte, de kelder en een garage met capaciteit voor 4 auto's. Het huis is voorzien van airconditioning (met leidingen) en centrale verwarming met warmtepomp. Het heeft een automatische toegangsdeur met een aparte voetgangersingang en een intercom. Op hetzelfde niveau als het hoofdhuis bevindt zich het zwembad. Inclusief buitentimmerwerk met automatische rolluiken en muggennetten in de slaapkamers, inbouwkasten met modules en basis alarminstallatie. Benissa is gelegen aan het noordelijke einde van de Costa Blanca, net buiten de snelweg A-7; de reis van en naar de luchthaven van Alicante duurt iets meer dan een uur. De stad is klein, maar betoverend met zijn middeleeuwse architectuur en charmante pleinen. Hoewel het hemelsbreed slechts 5 kilometer van zee verwijderd is, liggen de dichtstbijzijnde stranden over de weg op ongeveer 11 kilometer afstand en de badplaatsen Calpe (in het zuiden) en Moraira (in het noordoosten) op ongeveer 12 kilometer afstand. Het uitzicht op de Middellandse Zee, het weer, de wilde natuur, de kwaliteit van het licht, de architectuur van de steden, Benissa zal u verleiden. De luchthaven van Alicante ligt op 1 uur afstand.
Deze informatie is hier onderhevig aan fouten en maakt geen deel uit van een contract. De aanbieding kan zonder kennisgeving worden gewijzigd of ingetrokken. Prijzen zijn exclusief aankoopkosten.