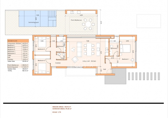
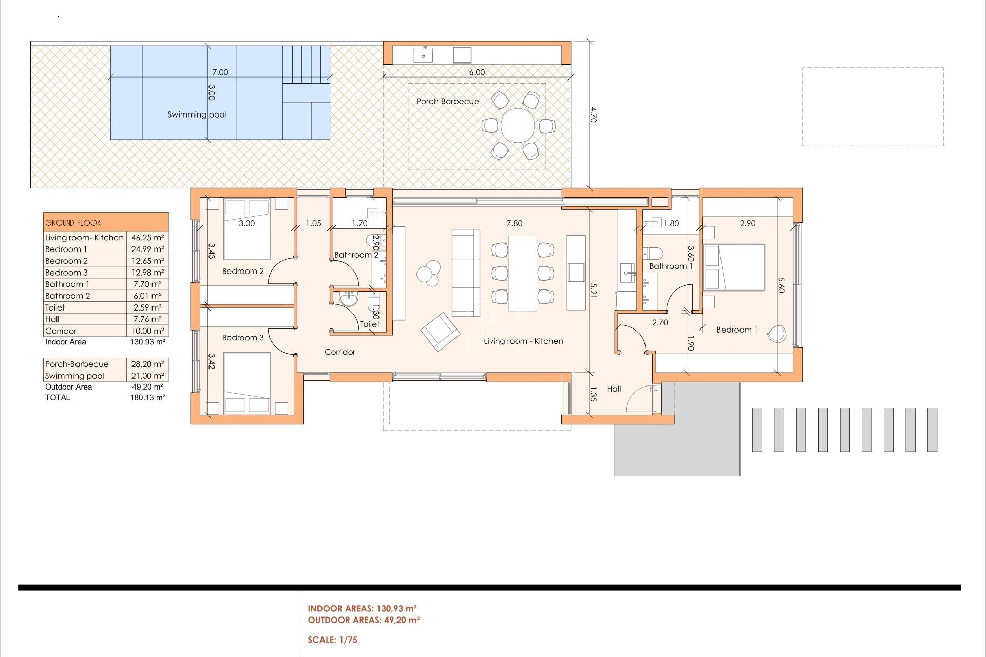
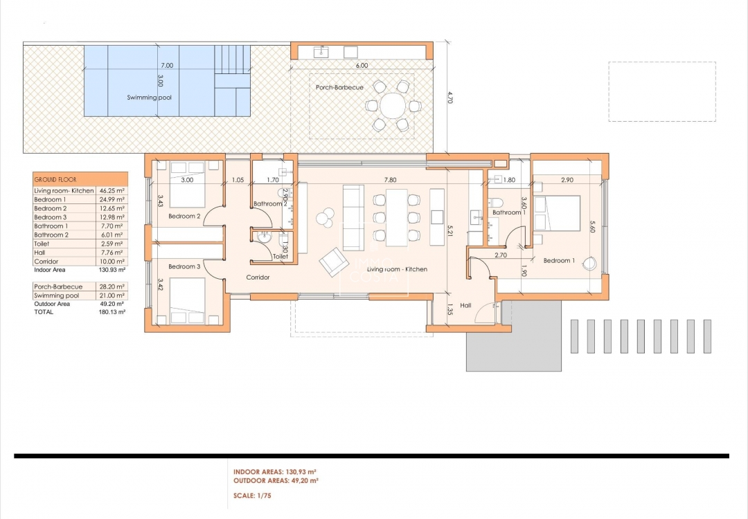
VILLAS NEUVES À ALTAONA GOLF RESORT, MURCIA Nouvelle construction d'un développement extraordinaire de villas nichées dans le magnifique Altaona Resort à Murcie. Cette enclave exclusive offre un cadre idéal pour faire l'expérience de la fusion parfaite entre la vie de luxe et le style de vie méditerranéen tranquille. Le paysage pénètre dans la maison par les grandes fenêtres. Le jardin acquiert une grande présence et fait partie de l'essence même de la villa. À l'intérieur, elles sont spacieuses et lumineuses, conçues pour laisser la lumière méditerranéenne inonder les pièces. Villas neuves avec cuisine ouverte, 3 chambres, 2 salles de bains, toilettes invités, terrasse, jardin privé avec piscine et place de parking. Caractéristiques : - Les propriétés ont un certificat énergétique de niveau A. - Installation de climatisation avec pompe à chaleur. Dans toute la maison à l'exception des salles de bains. - Chauffage électrique par le sol dans le salon et les salles de bains avec thermostat individuel par zone. - Système de renouvellement d'air dans la cuisine, les salles de bains, la buanderie et les toilettes des invités. - Cuisine Comprend une hotte aspirante et une plaque de cuisson électrique à induction avec 3 points de cuisson. - Éclairage LED dans le salon, le couloir et à l'extérieur. Le reste des pièces est préparé pour que le futur propriétaire puisse installer son propre éclairage. - Prises USB dans toutes les chambres. - Interphone électronique pour l'accès de l'extérieur au chemin intérieur. Sonnette à l'entrée de la propriété. - Système domotique avec deux interrupteurs intelligents. - Jardin paysager privé avec système d'irrigation goutte à goutte et la piscine. - Clôture extérieure de l'urbanisation. - Portails d'accès à l'urbanisation pour les véhicules : Portail coulissant en métal avec système d'ouverture à distance. Résidentiel situé à Altaona Golf à seulement 15 minutes en voiture du centre de la capitale Murcie et 20 minutes des plages, vous pouvez profiter de la tranquillité et de la sécurité offerte par le terrain de golf qui a 18 trous et le confort de vivre à proximité de tous les services. L'aéroport de Murcie Corvera est à seulement 15 minutes en voiture.
Cette information donnée ici est sujette à des erreurs et ne fait partie d'aucun contrat. L'offre peut être modifiée ou retirée sans préavis. Les prix n'incluent pas les coûts d'achat