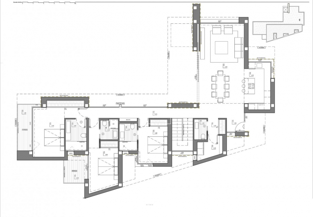
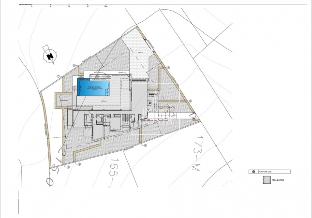
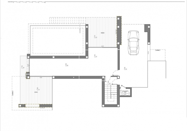
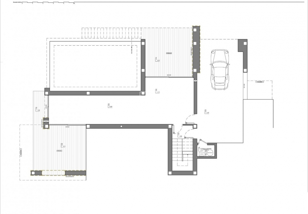
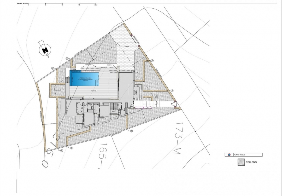
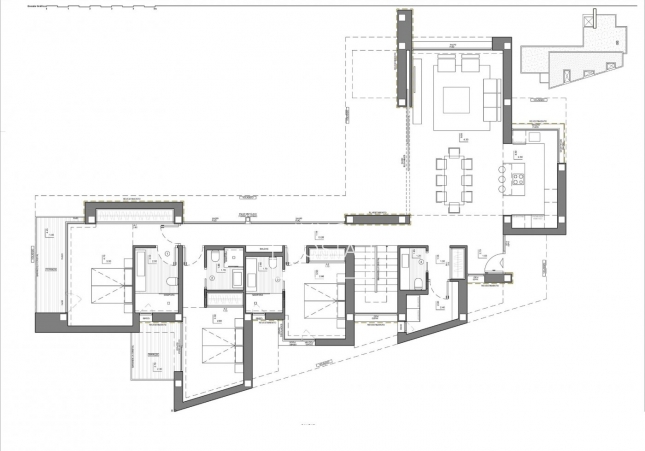
VILLA DE LUJO DE OBRA NUEVA EN CUMBRE DEL SOL Una casa exclusiva en un entorno idílico en el Residencial Cumbre de Sol, una obra maestra contemporánea con maravillosas vistas al mar. La planta superior alberga toda la casa, lo que proporciona un confort extra. La zona de noche consta de tres dormitorios en suite bañados en luz natural que conservan una gran privacidad respecto a las zonas de día. El salón, el comedor y la cocina están vinculados al exterior, gracias al uso de paredes de cristal que favorecen una conexión visual permanente con el mar. La terraza de más de 70m² está presidida por una piscina infinita. La casa se complementa con un sótano polivalente con dos porches y un garaje. Las formas geométricas que perfilan la estructura exterior están revestidas de vidrio y láminas de piedra natural en color gris, que contrasta con el blanco de la fachada. Destaca el cubo que alberga la terraza del dormitorio principal, que sobresale y da directamente al mar. En el punto más oriental de la provincia de Alicante, España, se encuentra el complejo residencial Cumbre del Sol. Los residentes y los huéspedes son los primeros en saludar al majestuoso sol cada mañana cuando se eleva sobre las tranquilas aguas del mar Mediterráneo. Desde nuestro exclusivo mirador, en el punto más alto del municipio de Benitachell, Cumbre del Sol ofrece vistas panorámicas sobre el mar y los parques naturales que nos rodean desde Jávea hasta Moraira. Descubra nuestro exclusivo resort en la Costa Blanca y conozca nuestros maravillosos pisos y chalets de primera categoría, nuestras increíbles instalaciones deportivas y de ocio y nuestra completa gama de servicios para los afortunados que hagan de Cumbre del Sol su hogar. Villa situada a 65 minutos del aeropuerto de Alicante y a 1,5 horas del aeropuerto de Valencia.
Esta información que se proporciona aquí está sujeta a errores y no forma parte de ningún contrato. La oferta se puede cambiar o retirar sin previo aviso. Los precios no incluyen los costes de compra