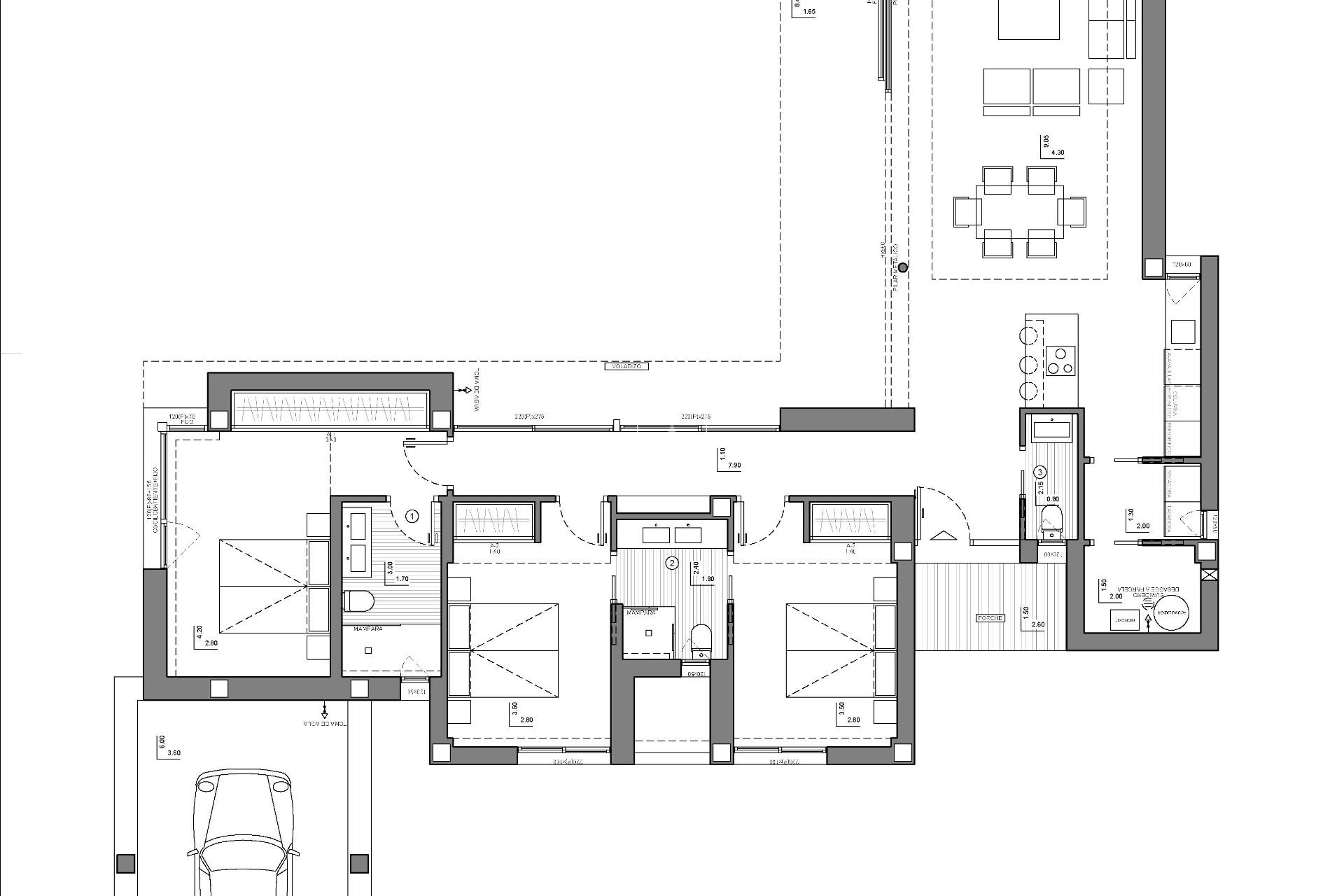
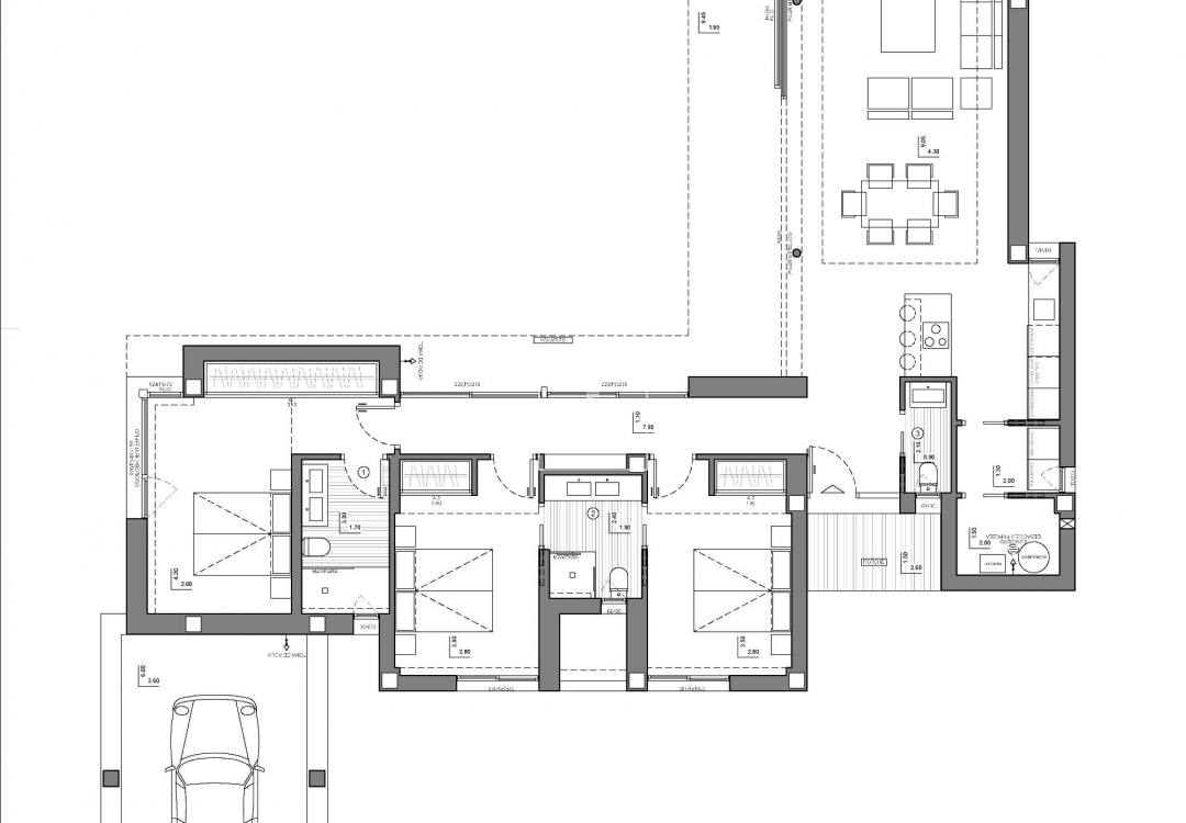
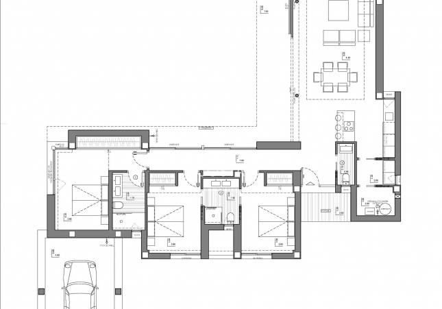
VILLA DE OBRA NUEVA CON VISTAS AL MAR EN CUMBRE DEL SOL Una casa con un concepto claro, crear una fusión entre el interior y el exterior, consiguiendo estancias abiertas, luminosas y funcionales. El salón invade la terraza e invita a disfrutar del maravilloso clima mediterráneo, que nos regala casi 300 días de sol al año. Concebida en módulos abiertos en forma de L, la villa abraza el jardín principal, donde una impresionante piscina infinita se funde con el mar. Un espacio abierto al exterior, que invita a disfrutar del sol y del clima mediterráneo, pero orientado de tal forma que se consigue la máxima privacidad. La villa está dividida en dos niveles. Arriba se encuentra la zona de noche, donde dos dormitorios comparten un baño común, mientras que la suite principal se convierte en un santuario privado con su propio baño y vestidor. Desde las habitaciones se disfruta de impresionantes vistas al mar y a la montaña, creando una sensación de serenidad y tranquilidad que invita al relax. En la planta baja se encuentra el módulo de día, que se abre al exterior, creando una sensación de continuidad y conexión con el entorno. El módulo de día consta de un hall de entrada, un aseo de invitados y el tándem formado por un gran salón-comedor y cocina perfectamente integrados. Ambos módulos convergen en la zona exterior con la terraza y la piscina como punto de conexión. El estilo contemporáneo de New Build Villa se funde con la tradición mediterránea, creando un espacio armónico y equilibrado que invita a la relajación y al disfrute de los sentidos. El jardín principal, de vegetación mediterránea y plantas aromáticas, conecta con la naturaleza. Se trata de una villa única y especial, diseñada para disfrutar de la vida al máximo y crear recuerdos inolvidables en un entorno de ensueño. Una villa que invita a soñar con una vida llena de lujo, confort y belleza, en un espacio donde arquitectura y naturaleza se funden en una sinfonía perfecta.
Esta información que se proporciona aquí está sujeta a errores y no forma parte de ningún contrato. La oferta se puede cambiar o retirar sin previo aviso. Los precios no incluyen los costes de compra