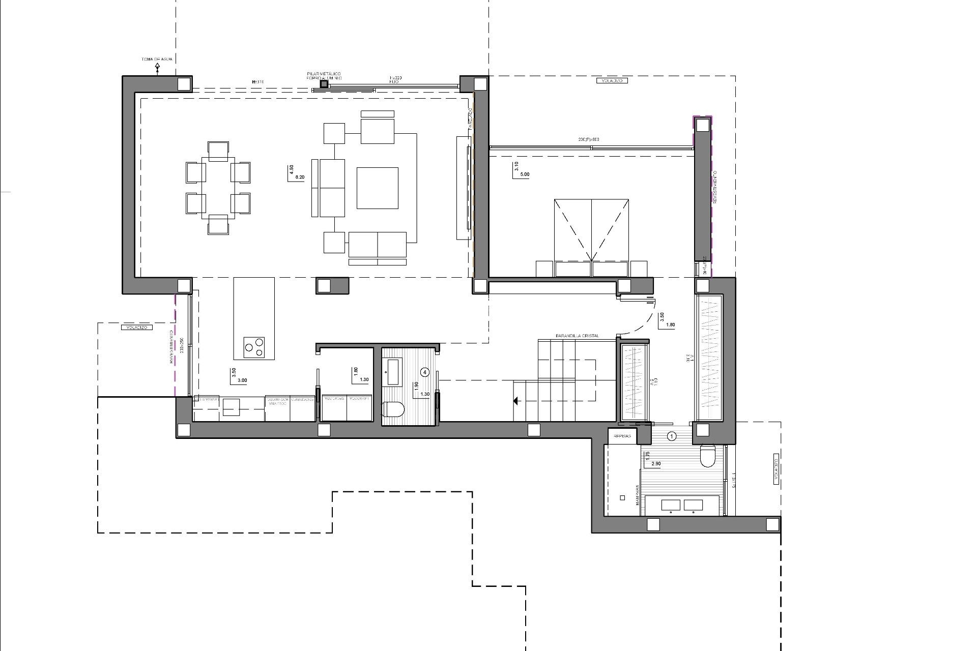
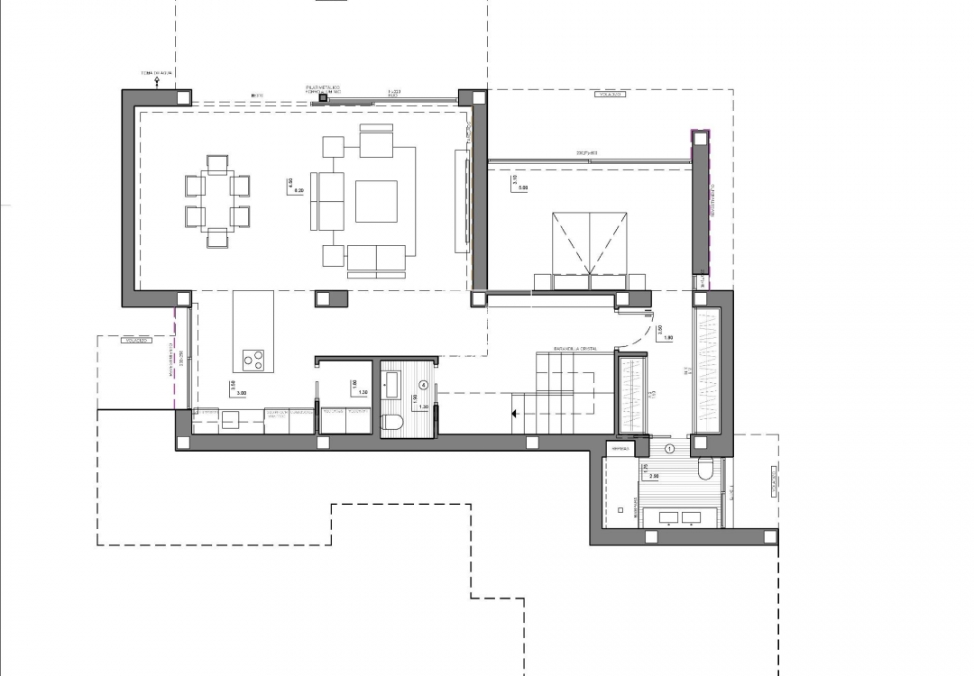
VILLA DE LUJO DE OBRA NUEVA EN CUMBRE DEL SOL Villa de lujo de obra nueva con espectaculares vistas al mar ideal para vivir en familia o disfrutar con amigos. Se encuentra en lo alto del Puig de la Llorençà, en el Residencial Cumbre del Sol dominando sobre la zona residencial y con unas inmejorables vistas al mar. Un lugar único y exclusivo en la Costa Blanca Norte. Su arquitectura moderna, basada en líneas rectas, combinada con el estilo mediterráneo combina a la perfección con su entorno. Esta villa ha sido completamente diseñada para potenciar la funcionalidad y el confort, sin escatimar un ápice en diseño. La villa está rodeada de un gran jardín con plantas y elementos autóctonos. Destacan los muros de piedra natural. La villa dispone de una zona de aparcamiento privado en la planta superior para un máximo de dos vehículos, ya que el acceso a la villa se encuentra en la misma planta. Una vez dentro, encontraremos dos dormitorios con baño privado y terraza para poder disfrutar de las vistas al mar en cualquier momento del día. Bajamos a la planta principal donde se encuentra la suite principal de esta villa. Una habitación muy amplia con un moderno vestidor con grandes armarios. El baño privado de la habitación le sorprenderá, empezando por su gran tamaño. Su equipamiento, basado en sanitarios de diseño de reconocidas marcas, junto con la posibilidad de tomar baños con vistas al mar, lo convierten en uno de los lugares más exclusivos de esta villa. La villa cuenta con una cocina equipada con electrodomésticos de primeras marcas y una gran isla donde poder cocinar en familia o con amigos en las largas jornadas. El salón ofrece un ambiente cálido gracias a los amplios espacios abiertos y a la luz natural, un lugar perfecto para relajarse. Y para terminar en esta planta, una extraordinaria piscina infinita en la terraza, desde donde podrá disfrutar de refrescantes baños mientras contempla la inmensidad del mar. En esta misma terraza podemos encontrar una zona cubierta, que le permitirá disfrutar del aire libre prácticamente todo el año, gracias al suave clima de la zona. El sótano es un amplio espacio vacío listo para que lo personalices como quieras. Podría convertirse en un cuarto dormitorio, un despacho, una sala de juegos o incluso un gimnasio. Las opciones son infinitas. La villa está equipada según los estándares de la misma. Dispone de servicios de alta gama: cocina amueblada con muebles de diseño, electrodomésticos de primeras marcas, calefacción por suelo radiante..., eche un vistazo a la memoria de calidades, no le dejará indiferente. Todas estas características hacen de esta Villa una opción perfecta para disfrutar de un estilo de vida mediterráneo. Si busca una vivienda diferente, Villa le ofrece el espacio adicional que hará especial su día a día.
Esta información que se proporciona aquí está sujeta a errores y no forma parte de ningún contrato. La oferta se puede cambiar o retirar sin previo aviso. Los precios no incluyen los costes de compra